Loading...
Retour aux annonces

Duplex atypique de 82m² et 3 chambres, charme des canuts, rue de Belfort 69004 LYON

Vendu(e)
  • vendu
  • Appartement
  • Référence N° ACSVA2116
Prendre rendez-vous Faire une offre d'achat
  • Localisation Lyon
  • Pièces / Chambres 4 pièces / 3 ch
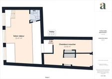
  • Surface habitable 82 m²
  • Surface totale 28.54 m²
  • Étage 0 / 2
  • Niveaux 1

Description

Bienvenue chez les Abriculteurs.

Retrouvez ici toutes les informations essentielles, des images professionnelles, un plan détaillé et une visite virtuelle pour faciliter votre projection !

CE BIEN EST À VENDRE EN VENTE INTERACTIVE.

Découvrez ce duplex de style canut, caractérisé par ses poutres et ses pierres apparentes. L'appartement s'ouvre sur une salle à manger avec une cuisine ouverte de 30m², incluant une buanderie attenante. Un premier escalier mène à un salon de 20m². L'espace nuit au rez-de-chaussée comprend une salle d'eau avec douche à l'italienne et une spacieuse chambre parentale de 17m². Une mezzanine de 23m² (hors carrez) actuellement aménagée en deux chambres d'enfants. Situation idéale à proximité de la Grande rue de la Croix-Rousse et de ses commerces, avec le métro C place de la Croix-Rousse accessible en quelques minutes à pied.

Les atouts du bien :

-Le charme des appartements de style canut (poutres et pierres apparentes, verrière…).
-Cour commune.
-Emplacement central dans la Croix-Rousse.
-Possibilité de transformer en local commercial.

À noter :

-Taxe foncière : 394€/an.
-Charges annuelles : 916€/an.
-Coût annuel du chauffage : 1600€/an.
-État du bien : Bon état, prévoir changement des fenêtres.
3- lots.
-Cave.
-Tout à l'égout.
-Aucune procédure en cours.
-Consommation conventionnelle (kWhEP/m2.an) : F (333) ; Estimation des émissions (kg CO2/m2.an) : F (73).
-Coût de l'énergie min / max : 1763€ / 2385€.
Année de référence des prix : 2021.

Prix ​​de vente : 270.000€ TTC (Honoraires Abriculteurs à la charge du vendeur).

Ce bien est à vendre en vente interactive réalisée par
ENCHERES IMMO. Aucun frais supplémentaire n’est à
prévoir ni pour l'acquéreur, ni pour le vendeur. La
participation à la vente interactive est soumise à
agrément préalable. Toutes les offres seront transmises au
vendeur, lequel restera libre dans la sélection de l'offre à
laquelle il entend donner suite. Une offre en ligne pendant
la vente interactive ne constitue pas une offre ferme et
définitive au sens de l'article 1114 du Code Civil, mais une
simple intention d'achat. Le prix affiché correspond à un
prix de première offre possible honoraires de négociation
inclus, étant précisé que ledit prix n’étant pas forcément
un prix auquel le vendeur souhaite vendre.

Si ce bien suscite votre intérêt, pour organiser une visite avec nous, rien de plus simple. Prenez rendez-vous en ligne à votre convenance.

Les informations sur les risques liés à ce bien sont disponibles sur le site Géorisques : www.georisques.gouv.fr , bien que ce bien ne soit probablement pas concerné par de tels risques.

Cette annonce immobilière est rédigée sous la responsabilité éditoriale de MME Anne-Charlotte SEDANO, EI, agent commercial mandataire en, immatriculée au registre spécial des agents commerciaux du tribunal de commerce de Lyon. SAS Abriculteurs immobilier, au capital de 5 000,00 €, immatriculée sous le numéro de SIREN 837704584, dont le représentant légal est Monsieur Adrien Piot.
Les informations sur les risques auxquels ce bien est exposé sont disponibles sur le site www.georisques.gouv.fr
  • Pièce(s) 4
  • Chambre(s) 3
  • Salle(s) de bains 1
  • Salle(s) d'eau 1
  • Toilette(s) 1
  • Date de construction 1850
  • Prix Vendu(e)
  • Taxe foncière 394 €/an
  • Chauffage Individuel, Gaz
  • Eau chaude Individuel, Gaz
  • Fibre optique
DPE_ logement extrêmement performant logement extrêmement peu performant consommation (énergie primaire) 333 kWh/m²/an émissions* 73 kgCO2/m²/an
DPE_ * Dont émissions de gaz à effet de serre peu d'émissions de CO2 émissions de CO2 très importantes 73 kgCO2/m²/an

Découvrir les points d’intérêt autour du bien

Pour afficher plus de points d’intérêts, veuillez sélectionner l’icône de localisation

Simuler votre emprunt

Informations légales

Abriculteurs immatriculé(e) 820749661.
Conformément aux articles L611-1 et suivants et R612-1 et suivants du Code de la consommation, le consommateur est informé qu’il a la possibilité de saisir un ou notre médiateur de la consommation, à savoir situé
Barème d'honoraires
Anne-charlotte SEDANO
Anne-charlotte SEDANO

se tient à votre disposition pour vous faire visiter ce bien.

Réservez une visite
Ce bien vous intéresse ? Contactez-moi
Votre projet
Tout commence ici...
Loading...
Les informations recueillies sur ce formulaire sont enregistrées dans un fichier informatisé par Abriculteurs pour gérer votre demande de contact. Elles sont conservées pour la durée nécessaire à la gestion de la relation client dans le respect des prescriptions légales applicables et sont destinées au responsable de la publication de ce site : Abriculteurs.
Conformément à la loi « informatique et libertés », vous pouvez exercer votre droit d'accès aux données vous concernant et les faire rectifier en contactant Abriculteurs bonjour@abriculteurs.com ou en utilisant ce formulaire. Nous vous informons de l’existence de la liste d'opposition au démarchage téléphonique « Bloctel », sur laquelle vous pouvez vous inscrire ici : https://www.bloctel.gouv.fr/