Loading...
Retour aux annonces

Terrain constructible 410m² viabilisé Rognes 13840

200 000 €
  • vente
  • Terrain
  • Référence N° LPVT2525
Prendre rendez-vous Faire une offre d'achat
  • Localisation Rognes
  • Surface habitable 410 m²

Description

Bienvenue chez Abriculteurs, l’agence familiale qui s’engage à un service d’exception. Découvrez une présentation soignée de ce bien : des photos pro, un plan détaillé et une visite virtuelle immersive pour vous projeter. Faites confiance à notre expertise pour transformer vos projets immobiliers en réussites remarquables.

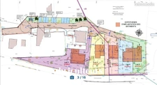
Dans le charmant village de Rognes (13840), nous vous proposons à la vente plusieurs terrains à bâtir, entièrement viabilisés et libres de constructeur.

Ces parcelles sont situées au sein d’une résidence verdoyante, sécurisée et intimiste, composée de seulement six lots d’habitation.

L’environnement y est particulièrement calme, offrant un cadre de vie paisible, idéal pour celles et ceux en quête de sérénité.

Ces terrains s’adressent tout particulièrement aux familles souhaitant construire la maison de leurs rêves dans un lieu à la fois privé, agréable et proche de toutes les commodités.

Parmi les lots disponibles, un terrain de 410 m² avec une emprise au sol de 180 m² est proposé au prix de 210 000 €.

D'autres parcelles, aux surfaces et prix variés, sont également disponibles, avec des tarifs compris entre 210 000 € et 304 500 €.

Prix de vente : 200 000 € TTC (hors honoraires agence)

Honoraires à la charge de l'acquéreur de 10 000 € représentant un total de 210 000 € (honoraires d'agence inclus), soit 5 % du prix de vente.

Ce bien a retenu votre intérêt ? Pour organiser la visite avec nous, rien de plus simple, prenez rendez-vous en ligne au moment qui vous convient le mieux.

Les informations sur les risques auxquels ce bien est exposé sont disponibles sur le site Géorisques : www.georisques.gouv.fr

Ce bien n'est potentiellement pas concerné par un tel risque.

La présente annonce immobilière a été rédigée sous la responsabilité éditoriale d'Adrien Piot.

SARL Abriculteurs immobilier au capital de 5 000,00 € immatriculée sous le numéro de SIREN 837704584 dont le représentant légal est Monsieur Adrien Piot.
Les informations sur les risques auxquels ce bien est exposé sont disponibles sur le site www.georisques.gouv.fr
  • Surface Carrez 410 m²
  • Prix 200 000 €

Découvrir les points d’intérêt autour du bien

Pour afficher plus de points d’intérêts, veuillez sélectionner l’icône de localisation

Simuler votre emprunt

Informations légales

Abriculteurs immatriculé(e) 820749661.
Conformément aux articles L611-1 et suivants et R612-1 et suivants du Code de la consommation, le consommateur est informé qu’il a la possibilité de saisir un ou notre médiateur de la consommation, à savoir situé
Barème d'honoraires
Laura PEFFERT
Laura PEFFERT

se tient à votre disposition pour vous faire visiter ce bien.

Réservez une visite
Ce bien vous intéresse ? Contactez-moi
Votre projet
Tout commence ici...
Loading...
Les informations recueillies sur ce formulaire sont enregistrées dans un fichier informatisé par Abriculteurs pour gérer votre demande de contact. Elles sont conservées pour la durée nécessaire à la gestion de la relation client dans le respect des prescriptions légales applicables et sont destinées au responsable de la publication de ce site : Abriculteurs.
Conformément à la loi « informatique et libertés », vous pouvez exercer votre droit d'accès aux données vous concernant et les faire rectifier en contactant Abriculteurs bonjour@abriculteurs.com ou en utilisant ce formulaire. Nous vous informons de l’existence de la liste d'opposition au démarchage téléphonique « Bloctel », sur laquelle vous pouvez vous inscrire ici : https://www.bloctel.gouv.fr/