Loading...
Retour aux annonces

Dupleix4 pièces3 chambres110 m²Paris 1 / Louvre Rivoli

Vendu(e)
  • vendu
  • Appartement
  • Référence N° APVA2203
Prendre rendez-vous Faire une offre d'achat
  • Localisation Paris
  • Pièces / Chambres 4 pièces / 3 ch
  • Surface habitable 110 m²
  • Étage 4/4
  • Niveaux 2
  • Ascenseur

Description

Duplex - 4 pièces - 3 chambres - 110 m² - Paris 1 / Louvre Rivoli.
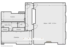
Les Abriculteurs vous propose à la vente ce magnifique duplex calme et exposé plein sud de 110 m² au sol et de 87 m2 carrez au 4ème étage et dernier étage avec ascenseur. Il se compose au premier niveau d'une entrée avec rangements, une cuisine ouverte entièrement équipée donnant sur un très grand séjour (4m60 de hauteur sous plafond) et d'une suite parentale avec une salle d'eau. A l'étage, vous trouverez un pallier desservant deux chambres et une salle de bain avec baignoire, water closet et lavabo. L'immeuble est situé en plein coeur de Paris dans un quartier très dynamique à proximité de crèches et d'établissements scolaires. Vous bénéficierez des nombreux commerces de proximité avec restaurants, bars et supermarchés du quartier. Il se trouve à proximité de nombreux transports : 178 mètres de la station Louvre Rivoli métro ligne 1 et 269 mètres de la station Chatelet les Halles métro lignes 1, 11, 14, 4 et 7, RER A, B et D. Duplex entièrement sur cour, poutre apparente, deux digicodes d'entrée, une porte blindée complètent ce bien. Copropriété très bien entretenue sans contentieux. Taxe foncière : 1400 euros, charges de copropriété : 200 euros/mois.
Les informations sur les risques auxquels ce bien est exposé sont disponibles sur le site www.georisques.gouv.fr
  • Pièce(s) 4
  • Chambre(s) 3
  • Salle(s) de bains 1
  • Salle(s) d'eau 1
  • Toilette(s) 1
  • Surface Carrez 110 m²
  • Date de construction 1900
  • Prix Vendu(e)
  • Charge de copropriété 200 €/mois
  • Taxe foncière 1400 €/an
  • Chauffage Individuel, Électrique
  • Eau chaude Individuel, Électrique
  • Ascenseur
  • Fibre optique
275
8

Découvrir les points d’intérêt autour du bien

Pour afficher plus de points d’intérêts, veuillez sélectionner l’icône de localisation

Simuler votre emprunt

Informations légales

Abriculteurs immatriculé(e) 820749661.
Conformément aux articles L611-1 et suivants et R612-1 et suivants du Code de la consommation, le consommateur est informé qu’il a la possibilité de saisir un ou notre médiateur de la consommation, à savoir situé
Barème d'honoraires
Ce bien vous intéresse ? Contactez-moi
Votre projet
Tout commence ici...
Loading...
Les informations recueillies sur ce formulaire sont enregistrées dans un fichier informatisé par Abriculteurs pour gérer votre demande de contact. Elles sont conservées pour la durée nécessaire à la gestion de la relation client dans le respect des prescriptions légales applicables et sont destinées au responsable de la publication de ce site : Abriculteurs.
Conformément à la loi « informatique et libertés », vous pouvez exercer votre droit d'accès aux données vous concernant et les faire rectifier en contactant Abriculteurs bonjour@abriculteurs.com ou en utilisant ce formulaire. Nous vous informons de l’existence de la liste d'opposition au démarchage téléphonique « Bloctel », sur laquelle vous pouvez vous inscrire ici : https://www.bloctel.gouv.fr/