Loading...
Retour aux annonces

Challans, La Garnache, maison d'architecte

Vendu(e)
  • vendu
  • Maison
  • Référence N° 2020-09-85710-240-V
Prendre rendez-vous Faire une offre d'achat
  • Localisation La Garnache
  • Pièces / Chambres 10 pièces / 4 ch
  • Surface habitable 240 m²
  • Surface totale 2500 m²
  • Niveau 1
  • Garage

Description

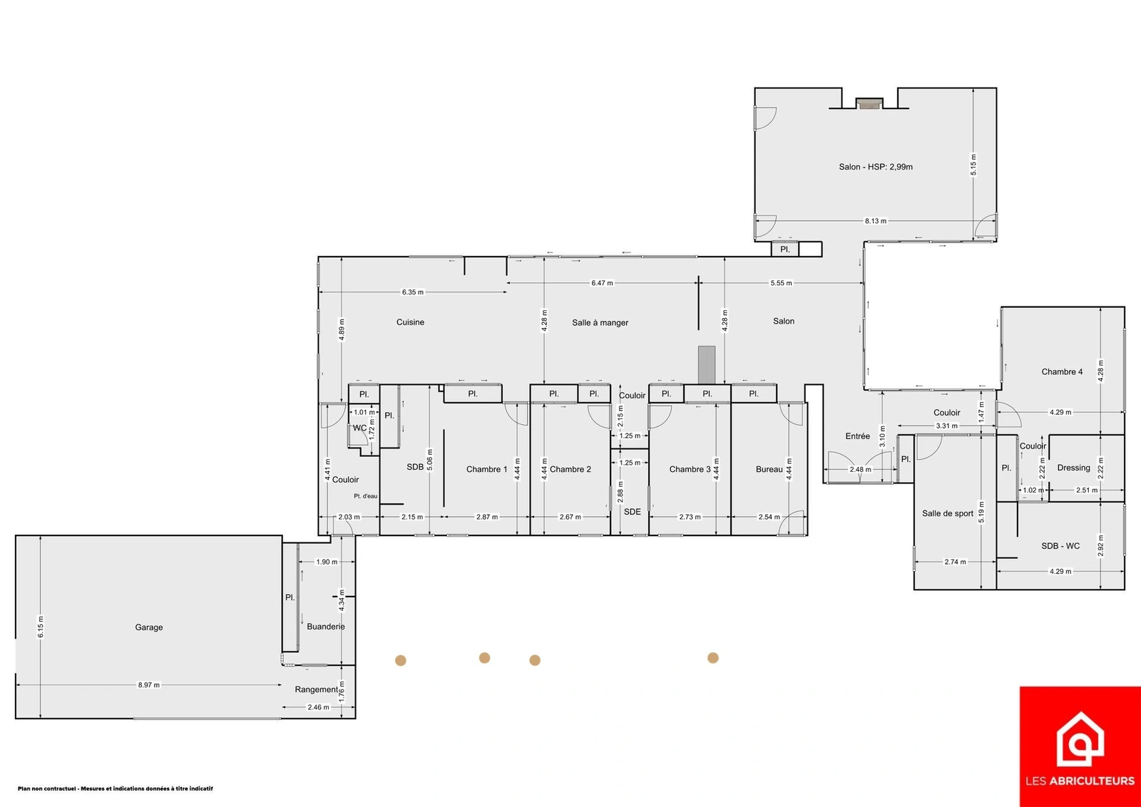
Challans, La Garnache, maison d'architecte de 2002 de 240 m2 d'une grande luminosité sur 2500m2 de terrain clos et arboré, sans aucun vis à vis - 599 000
Elle se compose dun grand salon avec cheminée donnant sur un patio, un petit salon TV, un espace salle à manger, une cuisine aménagée, donnant sur une terrasse en bois exposée sud ouest, une arrière cuisine, une suite parentale, deux chambres séparées par une salle d'eau et une troisième chambre avec salle de bain et douche, deux bureaux et deux WC.
Un double garage éléctrique et un atelier de 100 m2 complètent ce bien.
La maison se situe à 5 minutes des commerces de La Garnache, proche de Challans, ville commerçante de 20000 habitants et à 6 minutes des grandes surfaces, 40 minutes de l'aéroport de Nantes, 60 minutes du centre de Nantes et 20 minutes des plages.
Taxe foncière : 1590 euros.
Les informations sur les risques auxquels ce bien est exposé sont disponibles sur le site www.georisques.gouv.fr
  • Pièce(s) 10
  • Chambre(s) 4
  • Salle(s) de bains 2
  • Salle(s) d'eau 1
  • Toilette(s) 2
  • Surface Carrez 240 m²
  • Date de construction 2002
  • Prix Vendu(e)

Découvrir les points d’intérêt autour du bien

Pour afficher plus de points d’intérêts, veuillez sélectionner l’icône de localisation

Simuler votre emprunt

Informations légales

Abriculteurs immatriculé(e) 820749661.
Conformément aux articles L611-1 et suivants et R612-1 et suivants du Code de la consommation, le consommateur est informé qu’il a la possibilité de saisir un ou notre médiateur de la consommation, à savoir situé
Barème d'honoraires
Ce bien vous intéresse ? Contactez-moi
Votre projet
Tout commence ici...
Loading...
Les informations recueillies sur ce formulaire sont enregistrées dans un fichier informatisé par Abriculteurs pour gérer votre demande de contact. Elles sont conservées pour la durée nécessaire à la gestion de la relation client dans le respect des prescriptions légales applicables et sont destinées au responsable de la publication de ce site : Abriculteurs.
Conformément à la loi « informatique et libertés », vous pouvez exercer votre droit d'accès aux données vous concernant et les faire rectifier en contactant Abriculteurs bonjour@abriculteurs.com ou en utilisant ce formulaire. Nous vous informons de l’existence de la liste d'opposition au démarchage téléphonique « Bloctel », sur laquelle vous pouvez vous inscrire ici : https://www.bloctel.gouv.fr/