Loading...
Retour aux annonces

ASNIERES SUR SEINE / VOLTAIREAPPARTEMENT2 PIECES1 CHAMBRE45 M2265.000 €

Vendu(e)
  • vendu
  • Appartement
  • Référence N° CGVA0124306
Prendre rendez-vous Faire une offre d'achat
  • Localisation Asnières-sur-Seine
  • Pièces / Chambres 2 pièces / 1 ch
  • Surface habitable 45 m²
  • Étage 1
  • Niveaux 6
  • Ascenseur

Description

Bienvenue chez Abriculteurs.
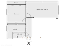
Vous trouverez ici toutes les informations clés, des photos professionnelles, un plan coté et une visite virtuelle pour vous aider à mieux vous projeter !

Découvrez ce charmant appartement traversant de 45 m2 au 1er étage avec ascenseur.
Ce 2 pièces, situé dans une belle copropriété bien entretenue du début du 20e siècle, se compose d’une entrée, d’un beau séjour sans vis-à-vis, d’une grande chambre sur cour avec rangements, d’une cuisine équipée séparée et d’une salle d’eau avec toilettes.


Opportunité pour investisseur !

Les + du bien
- Lumineux
- Environnement dynamique et commerçant
- Rangements
-A proximité immédiate des transports (Station Gabriel Péri ligne 13)

A noter :
- Le bien est soumis au statut de copropriété
- 62 lots dont 34 d’habitation
- Aucune procédure en cours
- Charges annuelles de copropriété : 2 160 €
- Taxe foncière : 524 €

Consommation conventionnelle (kWhEP/m2.an) : 316 (E)
Estimation des émissions (kg CO2/m2.an) : 68 (E)

Prix de vente : 265.000 € (Honoraires Abriculteurs à la charge du vendeur)

Ce bien a retenu votre intérêt ? Pour organiser la visite avec nous, rien de plus simple, prenez rendez-vous en ligne au moment qui vous convient le mieux.

La présente annonce immobilière a été rédigée sous la responsabilité éditoriale de Madame Céline Glineur, EI, Agent Commercial mandataire en immobilier immatriculé au Registre Spécial des Agents Commerciaux du Tribunal de Commerce de Nanterre

Découvrez ce bien grâce à la visite 3D et prenez rendez-vous pour une visite sur notre site : https://abriculteurs.com/biens-en-vente-contenu/asnieres-sur-seine/voltaire-appartement-2-pieces-1-chambre-45-m2
Les informations sur les risques auxquels ce bien est exposé sont disponibles sur le site www.georisques.gouv.fr
  • Pièce(s) 2
  • Chambre(s) 1
  • Salle(s) d'eau 1
  • Surface Carrez 45 m²
  • Prix Vendu(e)
  • Charge de copropriété 180 €/mois
  • Taxe foncière 524 €/an
  • Chauffage Collectif, Gaz
  • Eau chaude Individuel, Électrique
  • Double vitrage
  • Ascenseur
DPE_ passoire énergétique logement extrêmement performant logement extrêmement peu performant consommation (énergie primaire) 316 kWh/m²/an émissions* 68 kgCO2/m²/an
DPE_ * Dont émissions de gaz à effet de serre peu d'émissions de CO2 émissions de CO2 très importantes 68 kgCO2/m²/an

Découvrir les points d’intérêt autour du bien

Pour afficher plus de points d’intérêts, veuillez sélectionner l’icône de localisation

Simuler votre emprunt

Informations légales

Abriculteurs immatriculé(e) 820749661.
Conformément aux articles L611-1 et suivants et R612-1 et suivants du Code de la consommation, le consommateur est informé qu’il a la possibilité de saisir un ou notre médiateur de la consommation, à savoir situé
Barème d'honoraires
Ce bien vous intéresse ? Contactez-moi
Votre projet
Tout commence ici...
Loading...
Les informations recueillies sur ce formulaire sont enregistrées dans un fichier informatisé par Abriculteurs pour gérer votre demande de contact. Elles sont conservées pour la durée nécessaire à la gestion de la relation client dans le respect des prescriptions légales applicables et sont destinées au responsable de la publication de ce site : Abriculteurs.
Conformément à la loi « informatique et libertés », vous pouvez exercer votre droit d'accès aux données vous concernant et les faire rectifier en contactant Abriculteurs bonjour@abriculteurs.com ou en utilisant ce formulaire. Nous vous informons de l’existence de la liste d'opposition au démarchage téléphonique « Bloctel », sur laquelle vous pouvez vous inscrire ici : https://www.bloctel.gouv.fr/