Loading...
Retour aux annonces

CLICHY / CENTRE VILLEAPPARTEMENT2 PIECES1 CHAMBRE37 m2310.000€

Vendu(e)
  • vendu
  • Appartement
  • Référence N° SAVA2143
Prendre rendez-vous Faire une offre d'achat
  • Localisation 5 Rue Castérès, 92110, Clichy France
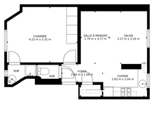
  • Pièces / Chambres 2 pièces / 1 ch
  • Surface habitable 37 m²
  • Étage 3/5
  • Niveau 1

Description

Abriculteurs, la néo-agence qui s’engage à un service immobilier d’exception pour 2% d’honoraires, vous propose ce très bel appartement au 3ème étage sur 5 sans ascenseur.

Très joli 2 pièces, lumineux et calme au coeur de Clichy, très bien distribué avec une belle pièce de vie et une cuisine semi-ouverte, une grande chambre avec un grand rangement et une salle de bain. WC séparé.

Idéale pour première achat, ou pour un couple, ainsi que pour un investissement locatif.

Les + du bien :
- très calme et lumineux,
- nombreux rangements,
- Proches commerces et transports ( Ligne 13 Mairie de Clichy), Bus (54, 74, 174,274),ligne L gare Clichy Levallois à 10 min et la ligne 14 à Porte de Clichy.
- Cave

Pas de travaux de co-propriété à prévoir, installation gaz et chaudière refait à neuf il y a 3 ans. Electricité refait il y a 5 ans. Et thermostat connecté.

Le bien est soumis au statut de copropriété
11 lots

Charges annuelles : 1 272 euros
Taxe Foncière : 480 euros

Consommations énergétiques : 225kWhEP/m².an(D)
Emissions de gaz à effet de serre : 52 kg CO2/m².an (E)

Prix : 310 000 € (Honoraires Abriculteurs à la charge du vendeur)

Chez Abriculteurs, on vous évite des appels inutiles et on vous fait gagner du temps : des annonces exhaustives pour trouver toutes les réponses à vos questions, une visite virtuelle, la prise de visite en ligne au moment qui vous arrange. C’est plus pratique et plus rapide.

La présente annonce immobilière a été rédigée sous la responsabilité éditoriale de Madame Stephanie Anriot, Agent Commercial mandataire en immobilier immatriculé au Registre Spécial des Agents Commerciaux du Tribunal de Commerce de Paris.

Découvrez ce bien grâce à la visite 3D.
Les informations sur les risques auxquels ce bien est exposé sont disponibles sur le site www.georisques.gouv.fr
  • Pièce(s) 2
  • Chambre(s) 1
  • Surface Carrez 37 m²
  • Prix Vendu(e)
  • Charge de copropriété 106 €/mois
  • Taxe foncière 430 €/an
  • Chauffage Gaz
  • Double vitrage
DPE_ passoire énergétique logement extrêmement performant logement extrêmement peu performant consommation (énergie primaire) 225 kWh/m²/an émissions* 52 kgCO2/m²/an
DPE_ * Dont émissions de gaz à effet de serre peu d'émissions de CO2 émissions de CO2 très importantes 52 kgCO2/m²/an

Découvrir les points d’intérêt autour du bien

Pour afficher plus de points d’intérêts, veuillez sélectionner l’icône de localisation

Simuler votre emprunt

Informations légales

Abriculteurs immatriculé(e) 820749661.
Conformément aux articles L611-1 et suivants et R612-1 et suivants du Code de la consommation, le consommateur est informé qu’il a la possibilité de saisir un ou notre médiateur de la consommation, à savoir situé
Barème d'honoraires
Ce bien vous intéresse ? Contactez-moi
Votre projet
Tout commence ici...
Loading...
Les informations recueillies sur ce formulaire sont enregistrées dans un fichier informatisé par Abriculteurs pour gérer votre demande de contact. Elles sont conservées pour la durée nécessaire à la gestion de la relation client dans le respect des prescriptions légales applicables et sont destinées au responsable de la publication de ce site : Abriculteurs.
Conformément à la loi « informatique et libertés », vous pouvez exercer votre droit d'accès aux données vous concernant et les faire rectifier en contactant Abriculteurs bonjour@abriculteurs.com ou en utilisant ce formulaire. Nous vous informons de l’existence de la liste d'opposition au démarchage téléphonique « Bloctel », sur laquelle vous pouvez vous inscrire ici : https://www.bloctel.gouv.fr/