Loading...
Retour aux annonces

Appartement 4 pièces3 chambres92 m²Paris 15/Necker

Vendu(e)
  • vendu
  • Appartement
  • Référence N° EBVA2200
Prendre rendez-vous Faire une offre d'achat
  • Localisation 4 Square Charles Laurent, 75015, Paris 15ème France
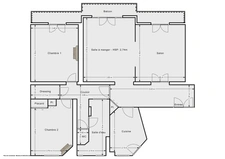
  • Pièces / Chambres 4 pièces / 2 ch
  • Surface habitable 92 m²
  • Étage 5/7
  • Niveau 1
  • Balcon
  • Ascenseur

Description

LES ABRICULTEURS, l’agence avec des honoraires réduits à 2% sans engagement d’exclusivité vous présente cet appartement de 92 m² situé au 5ème étage avec ascenseur d'un immeuble très bien entretenu de 1930.
Très calme, il est composé d'une entrée, un double séjour avec balcon filant donnant sur cour, une cuisine séparée, deux grandes chambres dont une avec balcon, un cagibi, un dressing, une salle d'eau et un water closet indépendant.
L'immeuble est situé dans un quartier très dynamique à proximité de nombreux commerces, restaurants, bar et supermarchés.
Il se trouve à : 430 mètres de la station Cambronne (ligne 6) et à 440 mètres de la station Volontaires (ligne 12). Une très grande cave complète ce bien.
Taxe foncière : 1 500 euros, charges de copropriété : 417 euros/mois (chauffage et eau froide inclus).
La copropriété est très bien entretenue (gardien à plein temps) et il n’y a aucun contentieux.
Possibilité d'acquérir avec ce bien une place de parking en sous sol dans la copropriété. Prix : 35 000 euros honoraires agence inclus.
Rafraichissements à prévoir
Les informations sur les risques auxquels ce bien est exposé sont disponibles sur le site www.georisques.gouv.fr
  • Pièce(s) 4
  • Chambre(s) 2
  • Salle(s) d'eau 1
  • Toilette(s) 1
  • Surface Carrez 92 m²
  • Date de construction 1930
  • Prix Vendu(e)
  • Charge de copropriété 416.67 €/mois
  • Taxe foncière 1500 €/an
  • Chauffage Collectif
  • Eau chaude Collective
  • Double vitrage
  • Ascenseur
  • Cheminée
279

Découvrir les points d’intérêt autour du bien

Pour afficher plus de points d’intérêts, veuillez sélectionner l’icône de localisation

Simuler votre emprunt

Informations légales

Abriculteurs immatriculé(e) 820749661.
Conformément aux articles L611-1 et suivants et R612-1 et suivants du Code de la consommation, le consommateur est informé qu’il a la possibilité de saisir un ou notre médiateur de la consommation, à savoir situé
Barème d'honoraires
Ce bien vous intéresse ? Contactez-moi
Votre projet
Tout commence ici...
Loading...
Les informations recueillies sur ce formulaire sont enregistrées dans un fichier informatisé par Abriculteurs pour gérer votre demande de contact. Elles sont conservées pour la durée nécessaire à la gestion de la relation client dans le respect des prescriptions légales applicables et sont destinées au responsable de la publication de ce site : Abriculteurs.
Conformément à la loi « informatique et libertés », vous pouvez exercer votre droit d'accès aux données vous concernant et les faire rectifier en contactant Abriculteurs bonjour@abriculteurs.com ou en utilisant ce formulaire. Nous vous informons de l’existence de la liste d'opposition au démarchage téléphonique « Bloctel », sur laquelle vous pouvez vous inscrire ici : https://www.bloctel.gouv.fr/