Abriculteurs, la néo-agence qui s’engage à un service immobilier d’exception pour 2% d’honoraires, vous propose ce très bel appartement au 3ème étage sur 5 sans ascenseur.
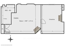
Très joli 2 pièces, lumineux et calme au coeur de Clichy. Il bénéficie d'une distribution idéale sans perte d’espace avec une belle pièce de vie avec cheminée et cuisine ouverte, une grande chambre avec un grand rangement et une cheminée. Salle de bain avec WC.
Idéal pour premier achat, ou pour un couple, ainsi que pour un investissement locatif.
Appartement refait il y a trois ans.
Les + du bien :
- Très calme et lumineux
- Nombreux rangements
- Proches commerces et transports ( Ligne 13 Mairie de Clichy), Bus (54, 74, 174,274)
ligne L gare Clichy Levallois à 10 min et la ligne 14 à Porte de Clichy.
- Cave
- Rail pour vélo dans la cour intérieur
Pas de travaux de co-propriété à prévoir, tout électrique.
Le bien est soumis au statut de copropriété
20 lots
Charges annuelles : 1360 euros
Taxe Foncière : 378 euros
Consommations énergétiques : 287kWhEP/m².an(E)
Emissions de gaz à effet de serre : 9 kg CO2/m².an (E)
Prix : 330.000 € (Honoraires Abriculteurs à la charge du vendeur)
Chez Abriculteurs, on vous évite des appels inutiles et on vous fait gagner du temps : des annonces exhaustives pour trouver toutes les réponses à vos questions, une visite virtuelle, la prise de visite en ligne au moment qui vous arrange. C’est plus pratique et plus rapide.
La présente annonce immobilière a été rédigée sous la responsabilité éditoriale de Madame Stephanie Anriot, Agent Commercial mandataire en immobilier immatriculé au Registre Spécial des Agents Commerciaux du Tribunal de Commerce de Paris.
Découvrez ce bien grâce à la visite 3D et prenez rendez-vous pour une visite :
https://www.lesabriculteurs.com/biens-en-vente-contenu/clichycentrevilleappartement2pieces1chambre36m2
Les informations sur les risques auxquels ce bien est exposé sont disponibles sur le site www.georisques.gouv.fr