Abriculteurs, la néo-agence qui s’engage à un service immobilier d’exception pour 2% d’honoraires, vous présente à la vente ce 2 pièces de 49 m2 Balcon/terrasse de 25,80 m2 avec vue sur les toits de Paris.
A proximité du métro Voltaire et des commerces, au cœur d’un quartier vivant, ce 2 pièces au 8ème (avec ascenseur) est très lumineux et calme.
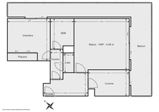
Il se compose d’une entrée avec placard, d’un séjour avec baie vitrée, d’une cuisine séparée, un couloir avec dressing, d’une chambre, d’une salle de bain et des toilettes indépendantes.
Grâce à la terrasse filante (14,30 m2 + 11,5 m2), exposée sud-est, et accessible depuis le séjour, la cuisine et la chambre, on a une vue imprenable sur Paris et ses toits légendaires…Elle vous offrira de bons et savoureux moments entre amis.
Il dispose également d’une belle cave saine et un box muni d'une serrure.
Les + du bien
- Calme, lumineux et sans vis-à-vis
- Grande terrasse
- Nombreux rangements
- Copropriété avec gardienne
Rafraichissement à prévoir
Le bien est soumis au statut de copropriété
866 lots dont 299 en habitation
Aucune procédure en cours
Gardienne
Charges annuelles : 2.475 €
Taxes foncières : 735 €
Consommation conventionnelle (kWhEP/m2.an) : 294 (E)
Estimation des émissions (kg CO2/m2.an) : 64 (F)
Logement à consommation énergétique excessive.
Prix de vente : 632.400 € (Honoraires Abriculteurs à la charge du vendeur)
Chez Abriculteurs, on vous évite des appels inutiles et on vous fait gagner du temps : des annonces exhaustives pour trouver toutes les réponses à vos questions, une visite virtuelle, la prise de visite en ligne au moment qui vous arrange. C’est plus pratique et plus rapide.
La présente annonce immobilière a été rédigée sous la responsabilité éditoriale de Madame Isabelle FRANCIS, Agent Commercial mandataire en immobilier immatriculé au Registre Spécial des Agents Commerciaux du Tribunal de Commerce de Nanterre.
Découvrez ce bien grâce à la visite 3D et prenez rendez-vous pour une visite
https://abriculteurs.com/biens-en-vente-contenu/paris-11/quartier-roquette-appartement-avec-terrasse-2-pieces-1-chambre-49-m2
Les informations sur les risques auxquels ce bien est exposé sont disponibles sur le site www.georisques.gouv.fr