Loading...
Retour aux annonces

Appartement3 pièces2 chambres70 m²Paris 1

Vendu(e)
  • vendu
  • Appartement
  • Référence N° 2020-07-75001-71-V
Prendre rendez-vous Faire une offre d'achat
  • Localisation 15 rue des halles, 75001, Paris 1er France
  • Pièces / Chambres 3 pièces / 2 ch
  • Surface habitable 70 m²
  • Étage 5/6
  • Parking
  • Ascenseur

Description

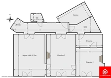
Les Abriculteurs vous propose à la vente ce magnifique appartement de 70 m² au 5 ème étage avec ascenseur et un grand balcon de 7,6 m².
Il se compose d'une entrée avec rangements, un couloir desservant : un séjour, deux chambres, une cuisine séparée équipée, un dressing, dune salle de bain avec baignoire et dun water closet indépendant.
L'immeuble est situé en plein cur de Paris dans un quartier très dynamique à proximité de crèches et d'établissements scolaires. Vous bénéficierez des nombreux commerces de proximité avec restaurants, bars et supermarchés du quartier. Il se trouve à 1 minute de la rue de Rivoli et à proximité de nombreux transports : 250 mètres de la station Chatelet les Halles métro lignes 1, 11, 14, 4 et 7, RER A, B et D.
Une grande cave de 10 m², des triples vitrages à toutes les fenêtres, parquet, moulures et cheminée, deux digicodes d'entrée (dont 1 visiophone), une porte blindée complètent ce bien.
Copropriété très bien entretenue sans contentieux.
Possibilité dacheter un parking en sus du prix rue Bertin Poirée : 45 000 euros.
Chauffage et eau chaude au gaz et électricité : 900 euros environ / an.
Taxe foncière : 900 euros, charges de copropriété : 120 euros/mois.
Les informations sur les risques auxquels ce bien est exposé sont disponibles sur le site www.georisques.gouv.fr
  • Pièce(s) 3
  • Chambre(s) 2
  • Salle(s) de bains 1
  • Toilette(s) 1
  • Surface Carrez 70 m²
  • Date de construction 1900
  • Prix Vendu(e)
  • Charge de copropriété 10 €/mois
  • Taxe foncière 900 €/an
  • Chauffage Individuel, Gaz
  • Ascenseur

Découvrir les points d’intérêt autour du bien

Pour afficher plus de points d’intérêts, veuillez sélectionner l’icône de localisation

Simuler votre emprunt

Informations légales

Abriculteurs immatriculé(e) 820749661.
Conformément aux articles L611-1 et suivants et R612-1 et suivants du Code de la consommation, le consommateur est informé qu’il a la possibilité de saisir un ou notre médiateur de la consommation, à savoir situé
Barème d'honoraires
Ce bien vous intéresse ? Contactez-moi
Votre projet
Tout commence ici...
Loading...
Les informations recueillies sur ce formulaire sont enregistrées dans un fichier informatisé par Abriculteurs pour gérer votre demande de contact. Elles sont conservées pour la durée nécessaire à la gestion de la relation client dans le respect des prescriptions légales applicables et sont destinées au responsable de la publication de ce site : Abriculteurs.
Conformément à la loi « informatique et libertés », vous pouvez exercer votre droit d'accès aux données vous concernant et les faire rectifier en contactant Abriculteurs bonjour@abriculteurs.com ou en utilisant ce formulaire. Nous vous informons de l’existence de la liste d'opposition au démarchage téléphonique « Bloctel », sur laquelle vous pouvez vous inscrire ici : https://www.bloctel.gouv.fr/