Loading...
Retour aux annonces

Appartement4 pièces3 chambresMeudon Centre

Vendu(e)
  • vendu
  • Appartement
  • Référence N° 2020-06-92190
Prendre rendez-vous Faire une offre d'achat
  • Localisation 13 Avenue Henri IV 92190 Meudon, 92190, Meudon France
  • Pièces / Chambres 4 pièces / 3 ch
  • Surface habitable 91 m²
  • Étage 4/5
  • Parking
  • Terrasse
  • Ascenseur

Description

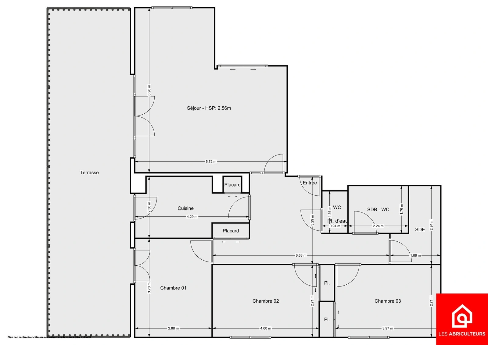
Appartement - 4 pièces - 3 chambres - Meudon sur Seine
Les Abriculteurs vous proposent cet appartement triple exposition de 91 m² situé au 4ème étage avec ascenseur, doté dune terrasse de 35 m².
Il se compose d'une entrée, d'une cuisine équipée, d'un grand séjour de 30 m², de trois chambres avec placards, d'un water closet indépendant, d'une salle de bain avec baignoire et water closet et d'une salle d'eau avec douche et doubles lavabos.
L'immeuble est situé dans un quartier dynamique à proximité d'établissements scolaires : école maternelle et primaire Perrault-Brossolette à 3 mn à pied, école Saint Joseph de Bellevue à 15 mn, institut Notre Dame (collège + lycée) à 8 mn. Vous bénéficierez des nombreux commerces de proximité avec restaurants, bars et supermarchés du quartier. Il se trouve à 15 minutes à pied de la station Issy (RER C), à 5 minutes de la station Meudon sur Seine (tramway T2) et à 10 minutes de la station Meudon (Transilien N).
Une cave de 5 m² et deux places de stationnement, tous situés en rez de chaussée, complètent ce bien. Copropriété avec local à vélo et poussettes très bien entretenue sans contentieux.
Taxe foncière : 1 655 euros, charges de copropriété : 183 euros/mois.
Les informations sur les risques auxquels ce bien est exposé sont disponibles sur le site www.georisques.gouv.fr
  • Pièce(s) 4
  • Chambre(s) 3
  • Salle(s) de bains 1
  • Salle(s) d'eau 1
  • Toilette(s) 2
  • Surface Carrez 91 m²
  • Date de construction 1998
  • Prix Vendu(e)
  • Charge de copropriété 15.25 €/mois
  • Taxe foncière 1655 €/an
  • Chauffage Gaz
  • Ascenseur

Découvrir les points d’intérêt autour du bien

Pour afficher plus de points d’intérêts, veuillez sélectionner l’icône de localisation

Simuler votre emprunt

Informations légales

Abriculteurs immatriculé(e) 820749661.
Conformément aux articles L611-1 et suivants et R612-1 et suivants du Code de la consommation, le consommateur est informé qu’il a la possibilité de saisir un ou notre médiateur de la consommation, à savoir situé
Barème d'honoraires
Ce bien vous intéresse ? Contactez-moi
Votre projet
Tout commence ici...
Loading...
Les informations recueillies sur ce formulaire sont enregistrées dans un fichier informatisé par Abriculteurs pour gérer votre demande de contact. Elles sont conservées pour la durée nécessaire à la gestion de la relation client dans le respect des prescriptions légales applicables et sont destinées au responsable de la publication de ce site : Abriculteurs.
Conformément à la loi « informatique et libertés », vous pouvez exercer votre droit d'accès aux données vous concernant et les faire rectifier en contactant Abriculteurs bonjour@abriculteurs.com ou en utilisant ce formulaire. Nous vous informons de l’existence de la liste d'opposition au démarchage téléphonique « Bloctel », sur laquelle vous pouvez vous inscrire ici : https://www.bloctel.gouv.fr/