Abriculteurs, la néo-agence qui s’engage à un service immobilier d’exception pour 2% d’honoraires, vous présente à la vente cet appartement familial en duplex de 120 m2 (113,65 m2 loi carrez) avec balcons aux 4ème et 5ème étages d’un immeuble de 1900.
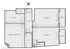
Au premier niveau, cet appartement se compose d'une entrée, d'un grand séjour (27,38 m2) lumineux grâce à son orientation sud-ouest, d'une grande chambre sur jardin, d'une cuisine, d'une salle d'eau et de toilettes indépendantes
Un bel escalier vous mène au niveau supérieur qui s'ouvre sur un espace bureau avec petit balcon.
Ce second niveau se compose également de 2 chambres dont une sur rue avec un petit balcon, d'une salle de bain, d'un espace buanderie, et de toilettes indépendantes.
Ce duplex est constitué de deux lots (possibilité de les scinder pour en faire 2 appartements de 3 pièces)
Appartement avec fort potentiel, travaux à prévoir
Les + du bien :
- Calme
- Lumineux
- Peu de vis-à-vis
- Proches des commerces, transports, crèches, écoles et collège
Le bien est soumis au statut de copropriété
13 lots
Aucune procédure en cours
Charges annuelles : 3128 euros
Taxe foncière : 1.400 €
Consommation conventionnelle (kWhEP/m2.an) : 388 (F)
Estimation des émissions (kg CO2/m2.an) : 13 (C)
Logement à consommation énergétique excessive.
Prix de vente : 1.142.500 € (Honoraires Abriculteurs à la charge du vendeur)
Chez Abriculteurs, on vous évite des appels inutiles et on vous fait gagner du temps : des annonces exhaustives pour trouver toutes les réponses à vos questions, une visite virtuelle, la prise de visite en ligne au moment qui vous arrange. C’est plus pratique et plus rapide.
La présente annonce immobilière a été rédigée sous la responsabilité éditoriale de Madame Isabelle FRANCIS, Agent Commercial mandataire en immobilier immatriculé au Registre Spécial des Agents Commerciaux du Tribunal de Commerce de Nanterre.
Découvrez ce bien grâce à la visite 3D et prenez rendez-vous pour une visite :
https://www.lesabriculteurs.com/biens-en-vente-contenu/paris-13/salpetriere-place-ditalie-appartement-duplex-5-pieces-3-chambres-120m2
Les informations sur les risques auxquels ce bien est exposé sont disponibles sur le site www.georisques.gouv.fr