Loading...
Retour aux annonces

Location de bureaux avec piscine Rive droite

9 000 €/mois CCDépot de garantie : 0 €
  • location
  • Bureau
  • Référence N° UZ9330UT
Prendre rendez-vous Faire une offre d'achat
  • Localisation Bordeaux
  • Surface habitable 173 m²
  • Étage 1/1
  • Terrasse

Description

Bienvenue chez Abriculteurs, l'agence familiale qui s'engage à offrir un service immobilier d'exception. Faites confiance à notre expertise pour transformer vos projets immobiliers en réussites remarquables.

Découvrez cet espace de travail unique, alliant modernité, volumes généreux et un extérieur rare en plein cœur de la métropole.

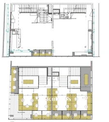
Offrez à vos équipes un cadre de travail hors norme. Situés dans un quartier ultra-dynamique, ces bureaux de 173 m² redéfinissent le bien-être au travail en alliant volumes industriels, clarté absolue et prestations haut de gamme.

Un espace de travail performant et lumineux

Découvrez un plateau baigné de lumière naturelle grâce à ses larges baies vitrées. L'agencement a été pensé pour optimiser la productivité :

Un vaste open space modulable pour vos pôles opérationnels.

Une salle de réunion indépendante pour vos points stratégiques.

Des zones de détente et de nombreux rangements intégrés.

L’atout rare : une terrasse de 50 m² avec piscine

Le véritable « effet waouh » de cette adresse ! Profitez d'un extérieur privatif exceptionnel, à l'abri des regards, incluant une piscine. C'est le lieu idéal pour vos déjeuners au soleil, vos brainstormings créatifs ou vos événements d'entreprise.

Une localisation stratégique

Situé au cœur d'un environnement porteur et à deux pas du tram A et E, arrêt Galin, vous bénéficiez d'une accessibilité optimale aux transports en commun, commerces et axes majeurs de la métropole bordelaise.

Les + du bien :

Surface premium : 173 m² en excellent état, composés d’un open space de 123 m² et de deux bureaux de 25 m² chacun.

Extérieur d'exception : terrasse de 50 m² avec piscine.

Prestations : beaux volumes, circulation fluide et finitions soignées.

À noter :

Loyer mensuel : 9 000 € tout inclus

Format agile : bail de 12 mois minimum

État : aucun travaux à prévoir, installation immédiate

Annonce rédigée sous la responsabilité éditoriale de M. Deramecourt Hadrien, agent commercial (EI), immatriculé au RSAC de Bordeaux sous le n° 913 910 022, sans détention de fonds, agissant pour le compte de la SARL Abriculteurs Immobilier, au capital de 5 000 €, immatriculée sous le SIREN n° 837 704 584, titulaire de la carte professionnelle n° CPI 7501 2018 000 025 842 délivrée par la CCI de Paris Île-de-France, dont le représentant légal est M. Adrien Piot, ayant son siège social au 12 rue des Halles, 75001 Paris.

Les informations sur les risques auxquels ce bien est exposé sont disponibles sur le site www.georisques.gouv.fr
  • Surface Carrez 173 m²
  • Prix 9 000 €/mois CC

Découvrir les points d’intérêt autour du bien

Pour afficher plus de points d’intérêts, veuillez sélectionner l’icône de localisation

Simuler votre emprunt

Informations légales

Abriculteurs immatriculé(e) 820749661.
Conformément aux articles L611-1 et suivants et R612-1 et suivants du Code de la consommation, le consommateur est informé qu’il a la possibilité de saisir un ou notre médiateur de la consommation, à savoir situé
Barème d'honoraires
Hadrien DERAMECOURT
Hadrien DERAMECOURT

se tient à votre disposition pour vous faire visiter ce bien.

Réservez une visite
Ce bien vous intéresse ? Contactez-moi
Votre projet
Tout commence ici...
Loading...
Les informations recueillies sur ce formulaire sont enregistrées dans un fichier informatisé par Abriculteurs pour gérer votre demande de contact. Elles sont conservées pour la durée nécessaire à la gestion de la relation client dans le respect des prescriptions légales applicables et sont destinées au responsable de la publication de ce site : Abriculteurs.
Conformément à la loi « informatique et libertés », vous pouvez exercer votre droit d'accès aux données vous concernant et les faire rectifier en contactant Abriculteurs bonjour@abriculteurs.com ou en utilisant ce formulaire. Nous vous informons de l’existence de la liste d'opposition au démarchage téléphonique « Bloctel », sur laquelle vous pouvez vous inscrire ici : https://www.bloctel.gouv.fr/